

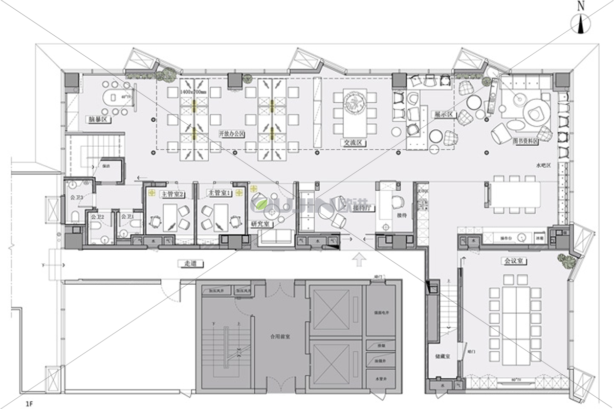
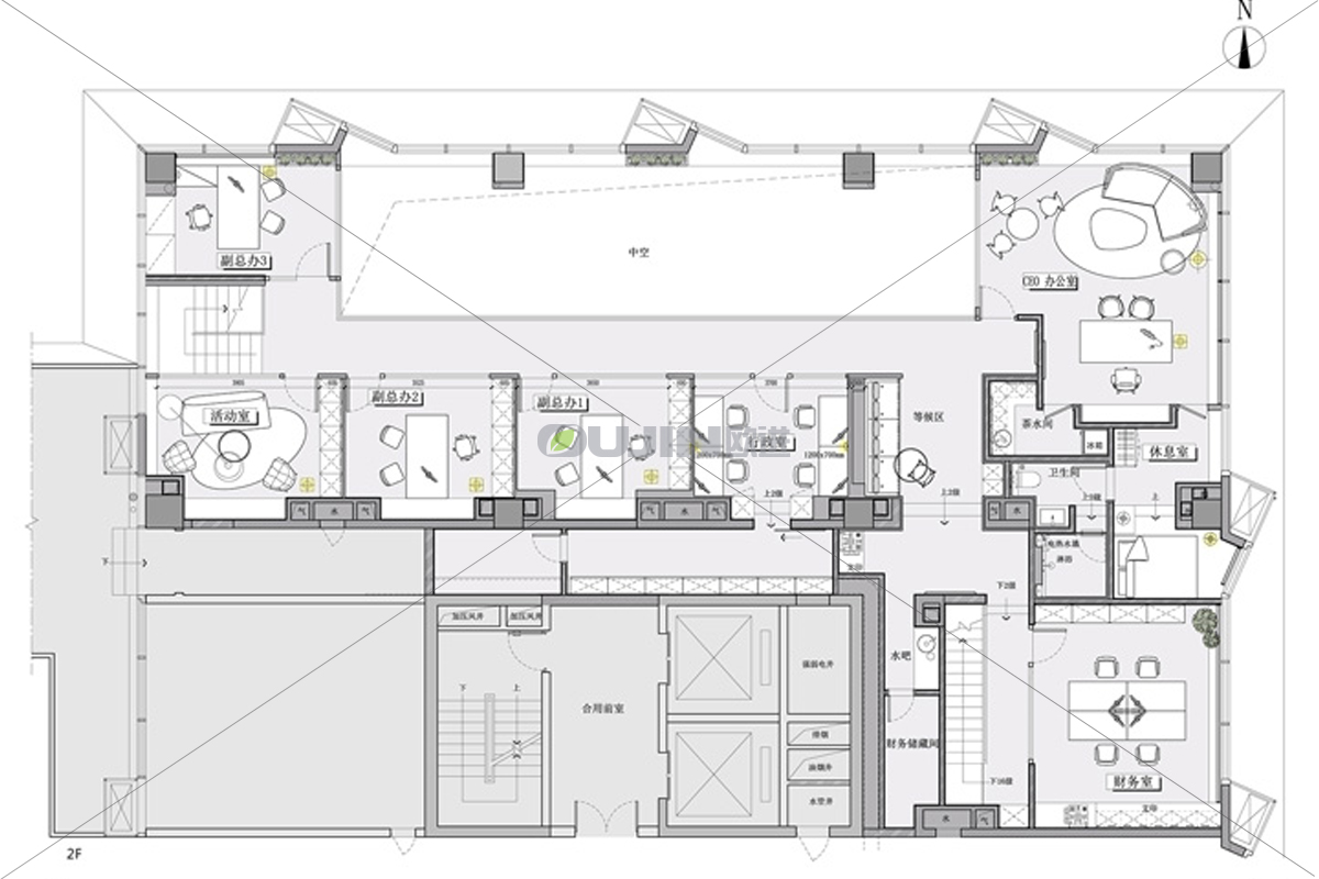
格洛伊CROYO——創立于2012年,是一家專注于打造設計全產業生態圈的多元化公司。公司基于對新式設計的理解,拒絕平庸,在以整體空間設計解決方案為核心的同時,延展辦公家具配置方案、品牌設計以及設計文化推廣的相關業務范疇。“空間并非填充物體的容器,而是人類意識的居所。我們所要關心的不是房屋形式或舒適與否的分析,我們想要研究的實際上是很簡單的形象,就是幸福空間的形象。”
如何讓工作與生活的界限在一個空間里消融,如何使共事的人與人之間回歸簡單樸實的交流,是格洛伊辦公室的設計訴求。這與崇尚“容易被忽視卻能真正改變生活”的簡約理念不謀而合。歐進家具提取自然、簡單、色彩、童趣等關鍵詞,構建了一個具多功能和情感聯結的辦公生態。歐進家具團隊創造出敞亮通透的空間且達到使用面積的最大化。















